Die Schneiders
Die Schneiders

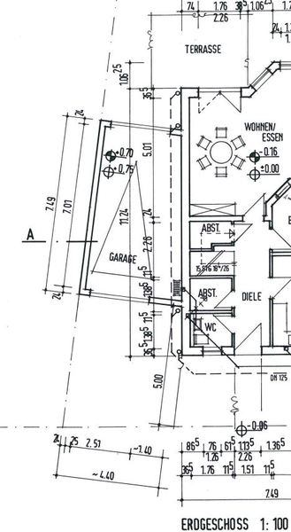
Garage/Hobbyraum

Fotos

Ein erstes Bild unserer Garage könnt ihr euch anhand dieser Fotos machen.

Aktuelles

Homepage online

Auf meinen neuen Internetseiten stelle ich mich und meine Hobbys vor.

Druckversion | Sitemap
© Rainer Schneider